Nøkkelinformasjon om eiendommen
Handelens og Sjøfartens Hus gjennomgår en fullstendig revitalisering med høye ambisjoner for bærekraft, kvalitet og funksjonalitet for leietakere og besøkende.
Byens mest sentrale beliggenhet. I samme bygg finner du Grand Selskapslokaler med flotte konferansefasiliteter og restaurant i 7 etasje med terrasse og 360 graders utsikt over Bergen.
Fullservice kontorbygg med fasiliteter som er tilrettelagt for en sømløs arbeidsdag. Her får du blant annet personalrestaurant, café, treningsrom, møteromssenter, podcastrom, gamingrom, sykkelparkering og garderober.
HSH vil bli et energieffektivt bygg med lave driftskostnader.
Her vil vi spare potensielt 50 % reduksjon i klimagassutslipp ved å restaurere, sammenliknet med nybyggFasiliteter
En fremtidsrettet eiendom balanserer miljømessig, sosial og økonomisk bærekraft og sikrer høy standard, et høyt servicenivå og attraktive fasiliteter som har «alt på ett sted»
Servering
3 serveringskonsept under samme tak
Konferanse og møteromssenter
Topp moderne utstyr og fasiliteter
Podcast- og gamingrom
For økt trivsel og kreative muligheter

Garderobe og sykkelparkering
Flotte fellesareal
For samhandling og verdiskapning på tvers av leietakere.






Historisk og fremtidsrettet
Handelens og Sjøfartens Hus gir leietakere en unik mulighet til å sette sitt preg på lokalene fra tidlig fase. Vi fokuserer på ansattes trivsel gjennom tilpasset utforming og tilbyr tett oppfølging og god informasjon under hele flytteprosessen.

Sirkulær økonomi
- Bevaring og ombruk av materialer prioriteres, med høy sorteringsgrad og bærekraftig avfallshåndtering. Vi tilrettelegger for et tett samarbeid med leietakere fra tidlig fase for å sikre ønsket utforming, miljøvennlig drift og et godt dataunderlag.
- Tilrettelegging for tett samarbeid med leietakere fra tidlig fase skal bidra til energi- og ressurseffektiv drift og miljøvennlig avfallssortering.
- Grønt alternativ til bilparkering planlegges for gjennom sykkelparkering.
Byens mest sentrale beliggenhet
Plassert i Olav Kyrres gate 11, med nærhet til kollektivknutepunkt og byens fasiliteter.
Buss
5 meter til nærmeste bussholdeplass
Bybane & Tog
15 meter til nærmeste bybanestopp & 400 meter til togstasjon

P-hus
Flere tilgjengelige P-hus i nærheten av bygget
Tilgjengelig
Universell utforming i og rundt bygget
Bærekraft
Vi støtter leietakers arbeid mot sine bærekraftsmål og planlegger for å levere gode, digitale data til deres klimagassregnskap og rapportering. Med sentral plassering ved kollektivknutepunkt reduseres leietakers transportutslipp og et energieffektivt bygg gir lave utslipp fra energi. Ved valg av leie i Handelens og Sjøfartens Hus, kan leietaker også bidra til at utslipp halveres i et rehabiliteringsprosjekt - sammenliknet med å rive og bygge nytt.

Energiforbruk, inneklima og klimagassutslipp
- Eiendommen skal taksonomi verifiseres og vil oppnå Energiklasse B.
- Nye tekniske anlegg, slik som blant annet ventilasjons -og kjøleanlegg, LED-belysning mm. skal gi et sunt og godt inneklima for leietakere og besøkende.
- Innsamling av miljødata fra rehabilitering og drift skal bidra til leietakers rapportering. Data fra drift baseres på markedsledende teknologi og systemer.
Kort om Handelens og Sjøfartens Hus
Total areal
11 200 m2
Ledig kontorareal
750 kvm
Sted
Bergen Sentrum
Byggeår
1931
Renovert
2025 - 2026
Ferdigstillelse
Q4 2026
Adresse
Olav Kyrres gate 11
5014 Bergen
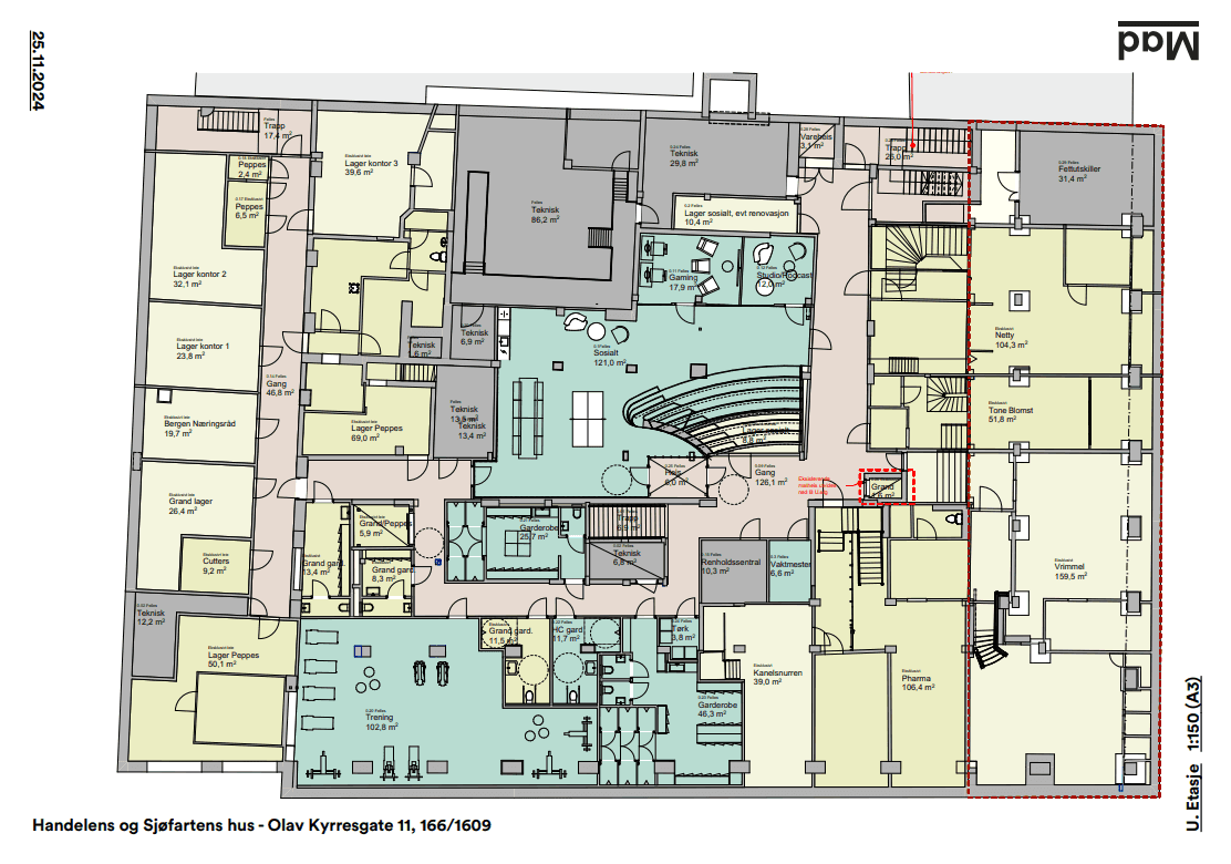
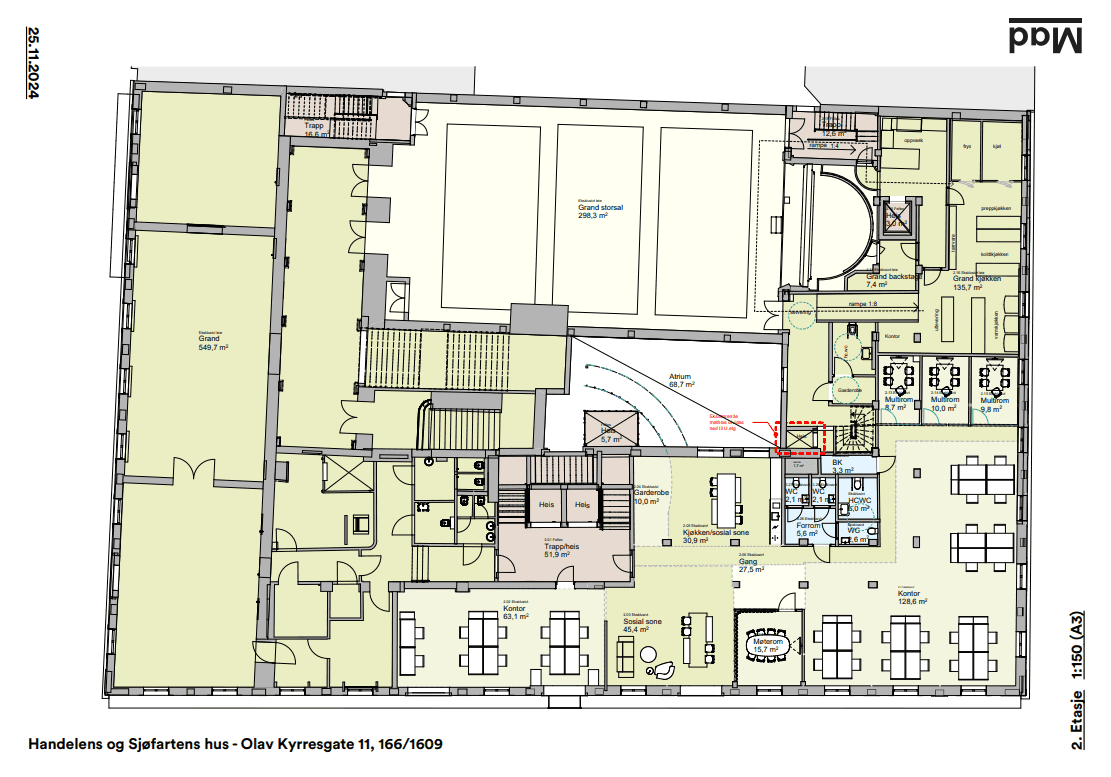
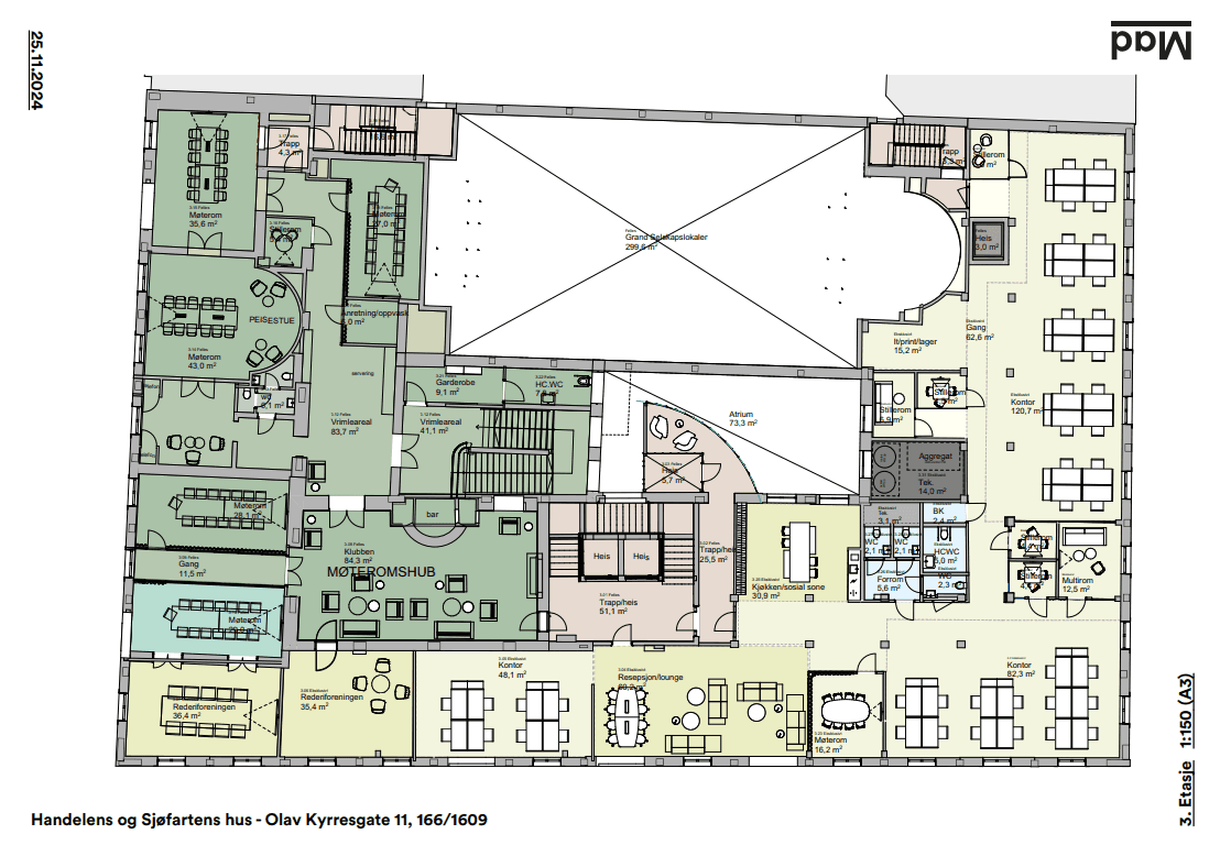
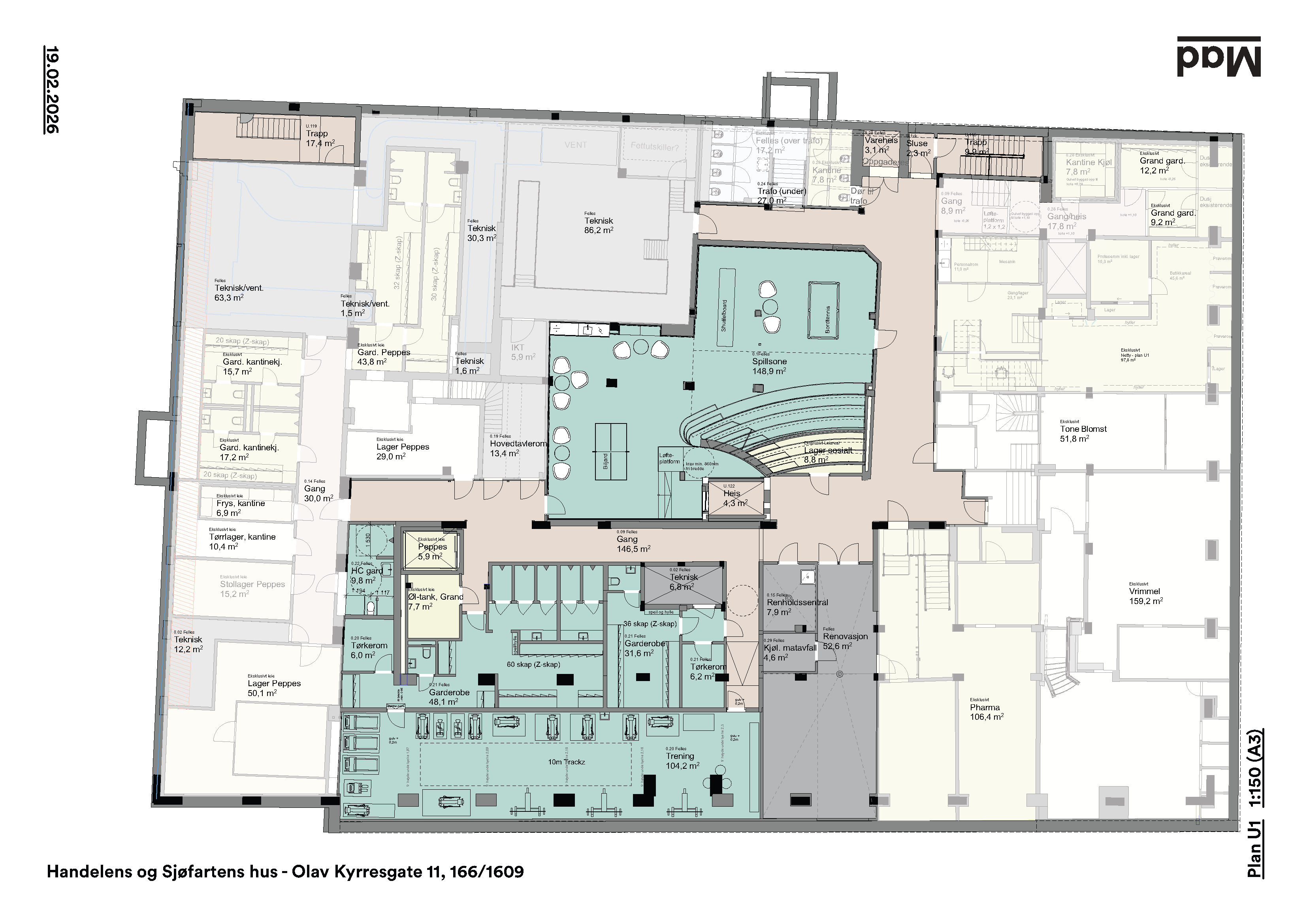
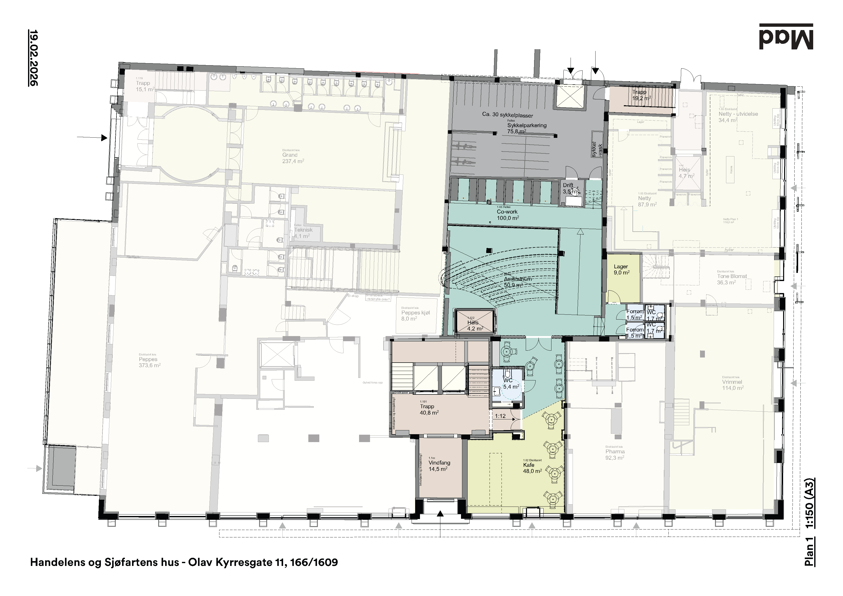
Arealoversikt i bygget
Handelens og Sjøfartens Hus blir sentrum for et pulserende arbeidsmiljø. Med funksjoner for konsentrasjon, samhandling, avslapning og sosiale arrangementer, samt godt inneklima og sunne mattilbud, bidrar vi til ansattes trivsel og prestasjoner.

U etasje

1. etasje

2. etasje

3. etasje

4. etasje

5. etasje

6. etasje

